BIM-konsult, ritningstjänster och 3D-skanning för byggprojekt
Hej! Mitt namn är Patrik och jag är 35 år och BIM-konsult. Med över ett decennium av dedikerad expertis är jag din pålitliga konsult för BIM-samordning och ritningslösningar.

Betrodda av ledande företag
Vi har arbetat med några av Sveriges mest respekterade företag
BIM-samordning, ritningstjänster och 3D-skanning
Expertis inom BIM-konsulting, CAD-ritningar, 3D-skanning och utrymningsplaner för fastighetsförvaltare och byggprojekt i Stockholm
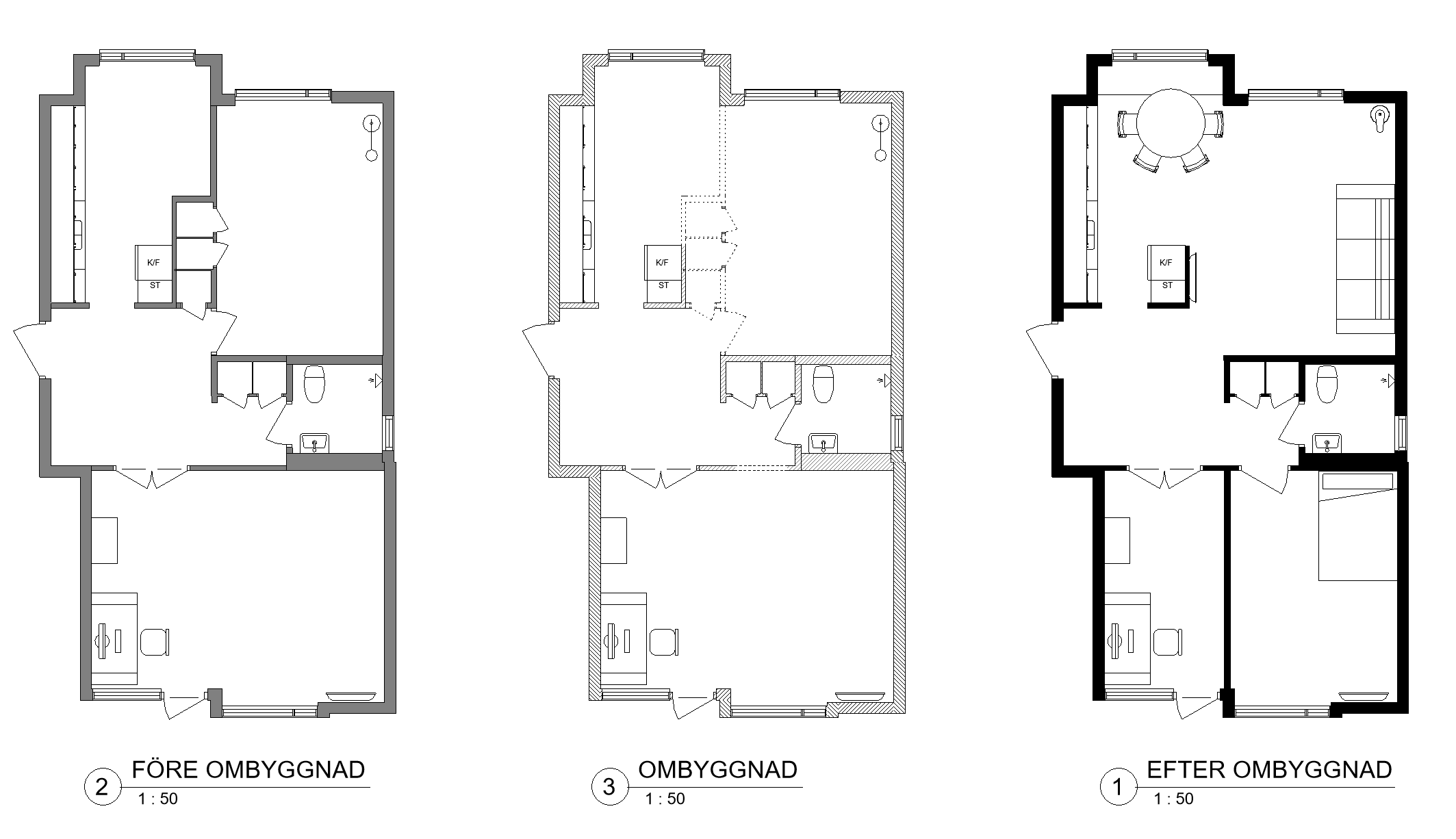
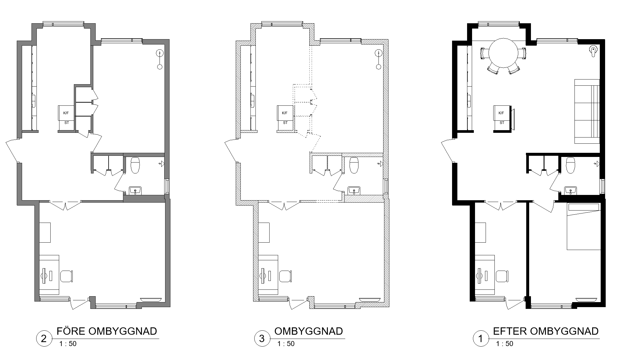
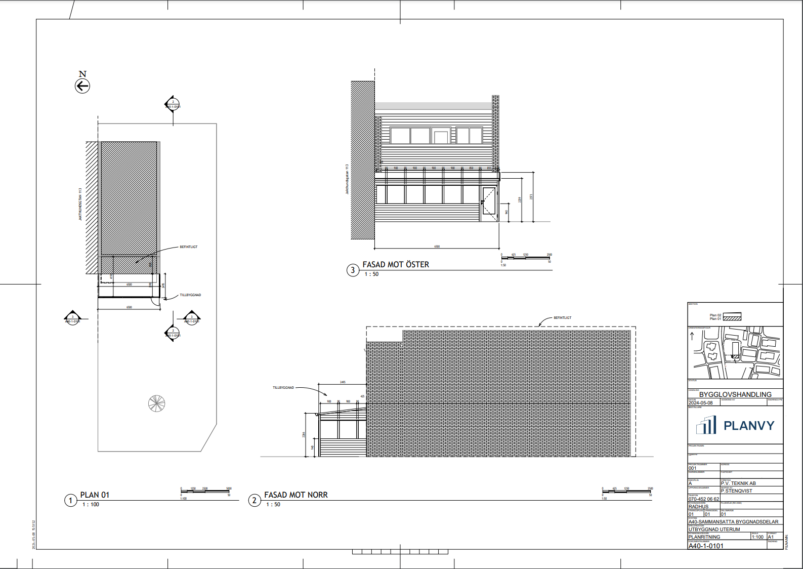
Arkitektritningar
Bygglovsritningar
Läs mer
BIM-Konsult
Professionell BIM-rådgivning för fastighetsförvaltare
Läs mer
Areamätning
Uppmätning av bostäder och lokaler
Läs mer
Utrymningsplaner
Utrymningsplaner för er verksamhet och behov
Läs mer
Laserskanning
3D-skanning/punktmolnskanning för större fastighetsprojekt
Läs mer
Dokumenthantering
Hjälper till att upprätta och sortera ert ritningsarkiv
Läs mer
Projekt inom BIM-konsulting och ritningstjänster
Exempel på BIM-samordning, 3D-skanning och CAD-ritningar för fastighetsförvaltare




