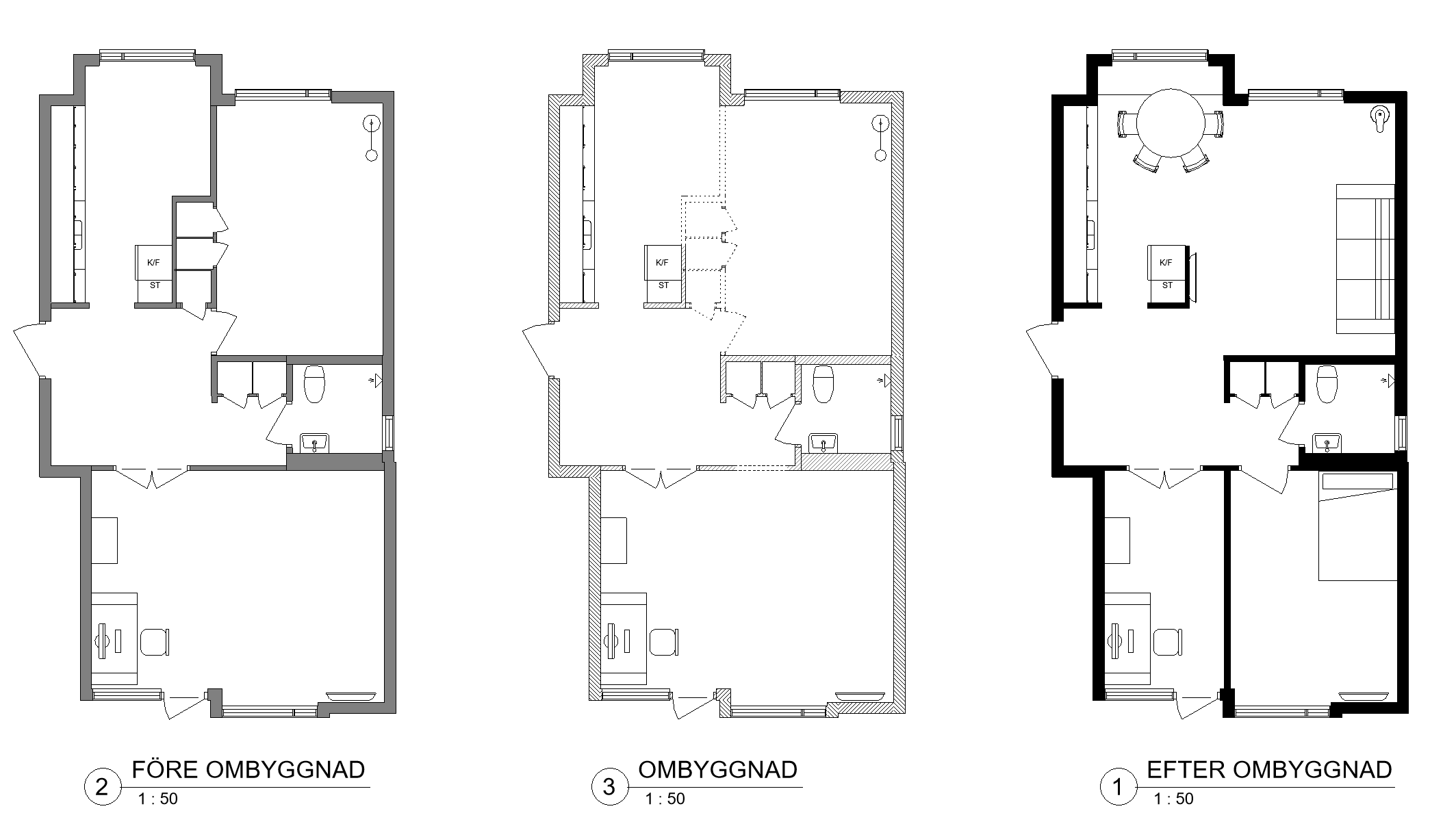
Bimma AB hjälpte en kund med att visualisera en planerad ombyggnad av lägenhet. Ritningar togs fram i Revit för att ge kunden en tydlig bild av hur lägenheten kommer att se ut efter ombyggnationen.
Visualiseringen inkluderade planritningar och 3D-vyer som gjorde det enkelt för kunden att förstå förändringarna och fatta välgrundade beslut om layouten. Genom att använda BIM-verktyg kunde vi snabbt testa olika lösningar och optimera planlösningen.
