
Ombyggnad av lägenhet
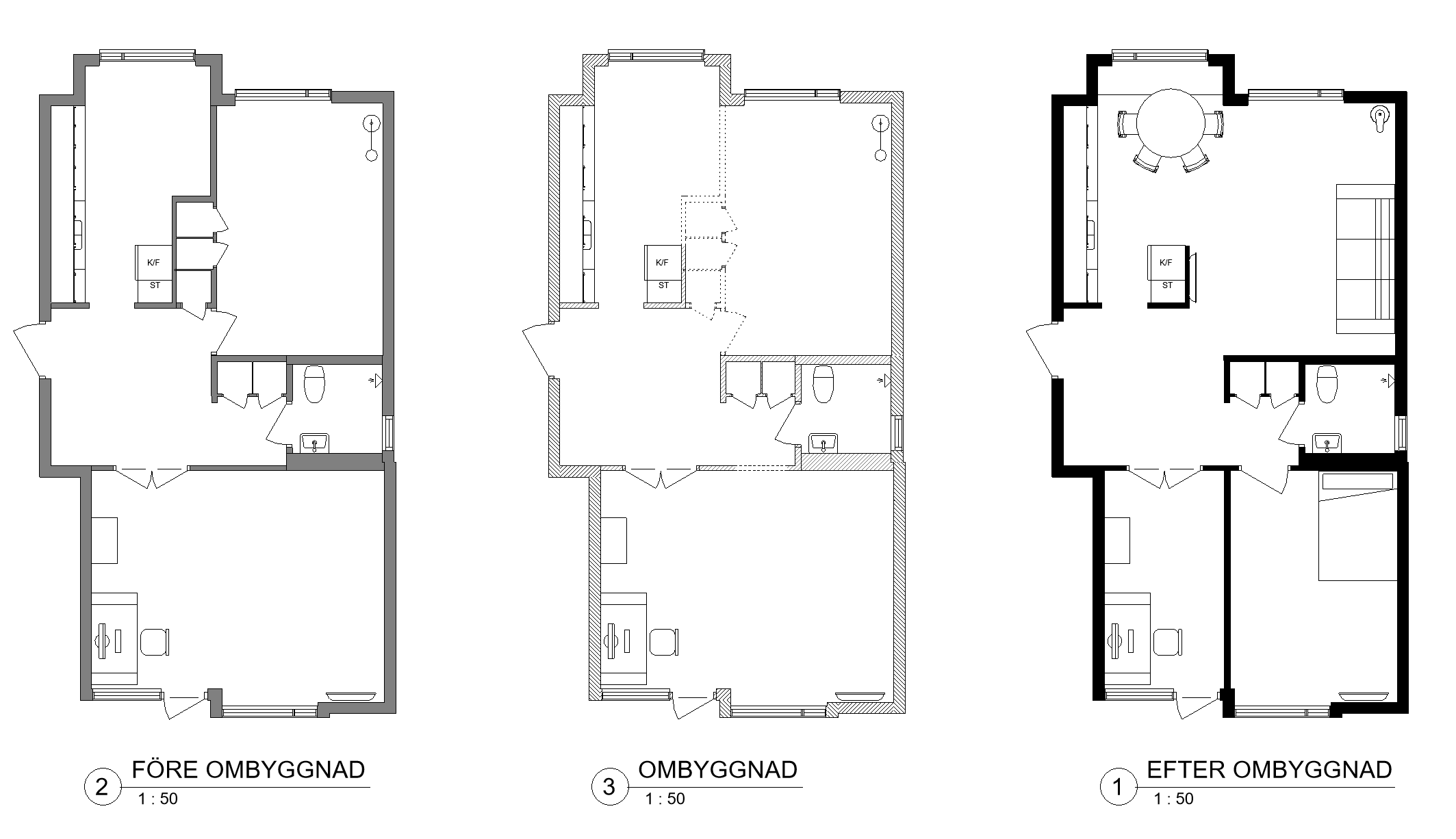
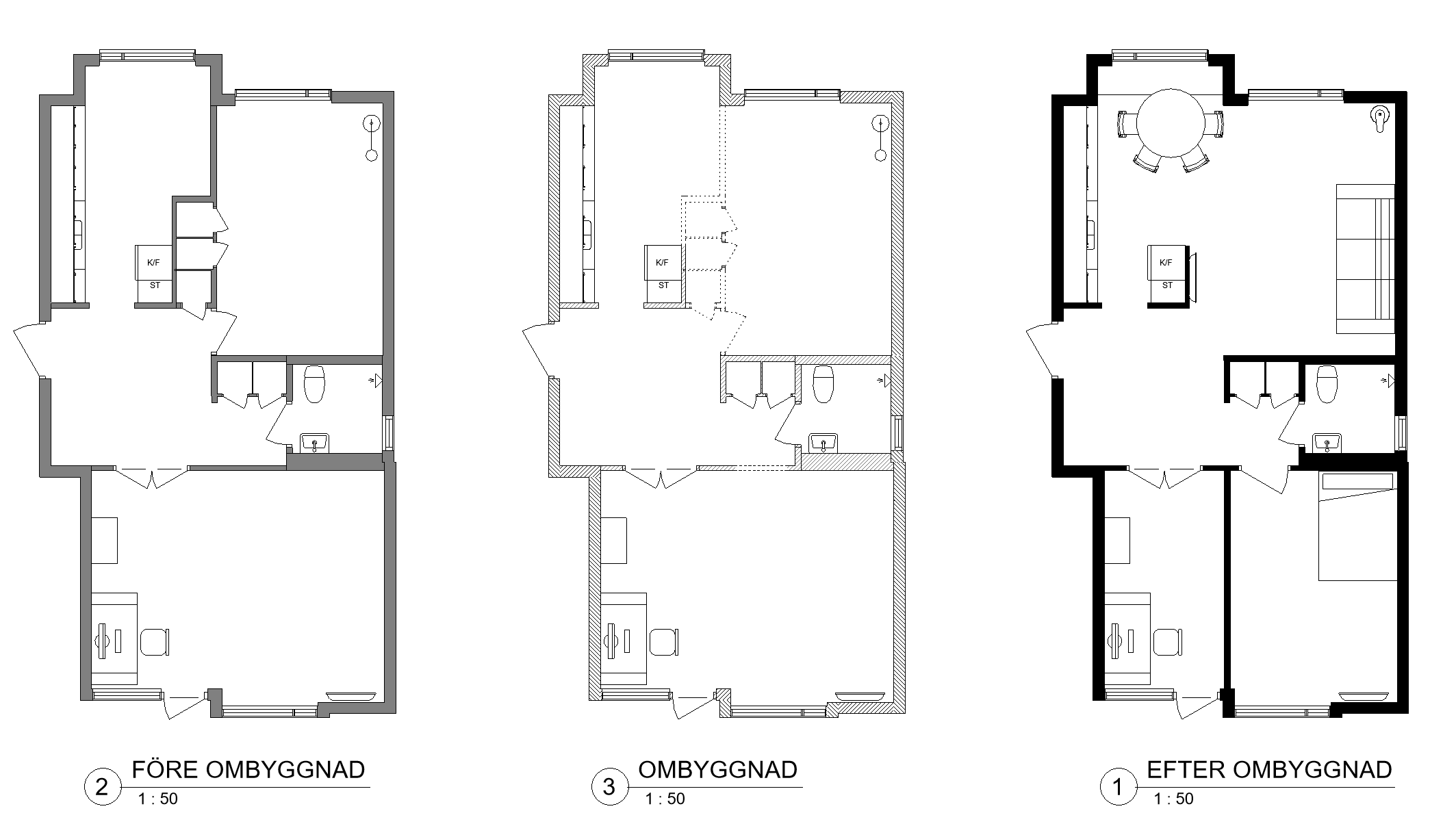
**Bimma AB** hjälpte en kund med att visualisera en planerad ombyggnad av lägenhet. Ritningar togs fram i Revit för att ...
ProjektLäs mer
Se exempel på vårt arbete och hur vi hjälper kunder att förverkliga sina byggprojekt med precision och professionalism. Varje projekt visar vår expertis inom BIM och fastighetsteknik.

**Bimma AB** hjälpte en kund med att visualisera en planerad ombyggnad av lägenhet. Ritningar togs fram i Revit för att ...

**Bimma AB** Hjälpte en kund med utbyggnad av sovrum, garage, bastu och förråd. Projektet ritades i Revit och följande r...

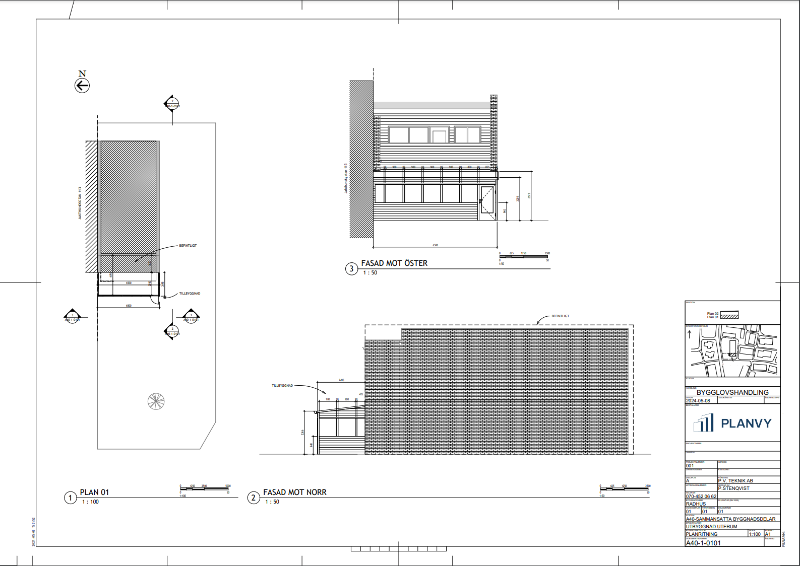
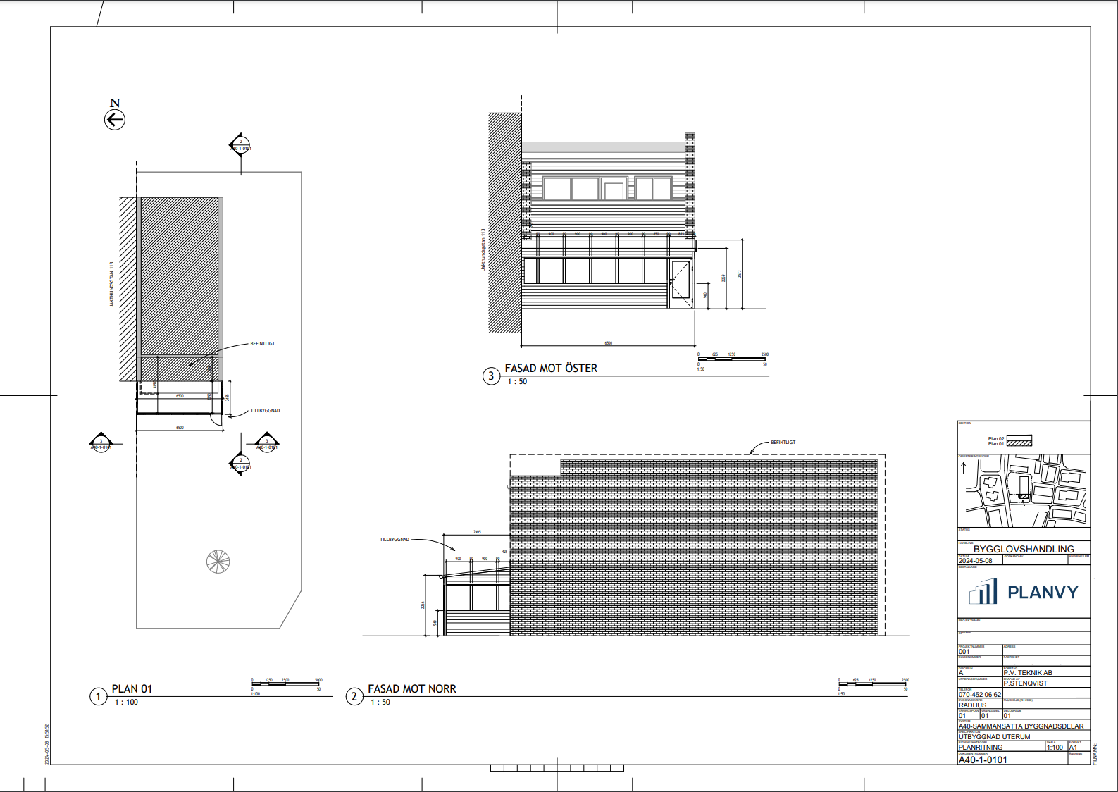
**Bimma AB** Hjälpte en kund med utbyggnad av ett uterum, projektet ritades i Revit och följande ritningar togs fram för...
Vi hjälper gärna dig med ditt nästa byggprojekt. Kontakta oss för en kostnadsfri konsultation och se hur vi kan bidra till ditt projekt.