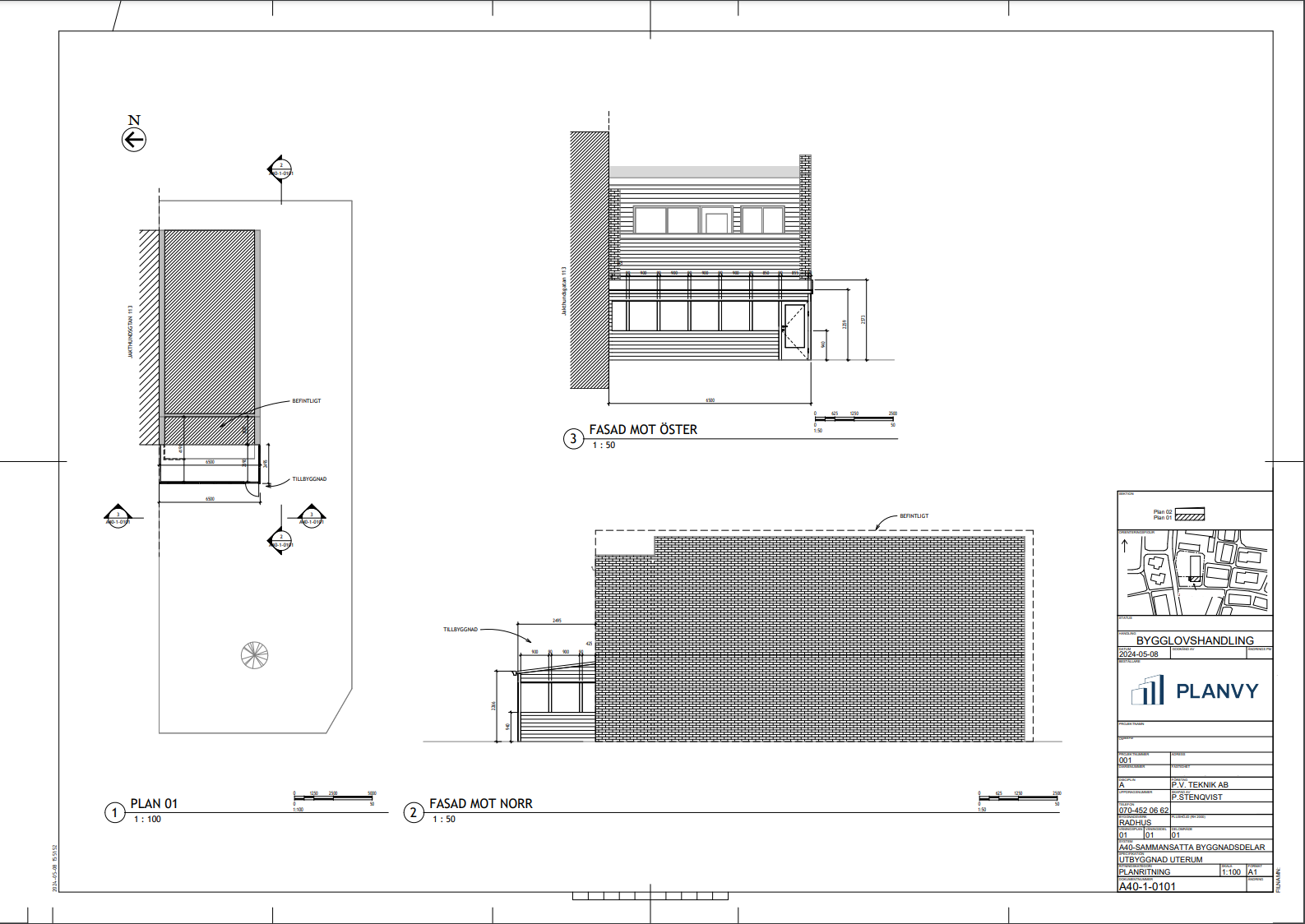
Bimma AB Hjälpte en kund med utbyggnad av ett uterum, projektet ritades i Revit och följande ritningar togs fram för bygglovsansökan. Planritning, Fasadritning, Situationsplan och 3D-ritning. 3D-ritningen är inte något som behövs i bygglovsansökan men kan vara ett bra sätt för att visualisera hur utbyggnaden kommer se ut när det är klart.
Slutfört Projekt
Bygglovshandling
Se detaljer om detta projekt och hur vi använde vår expertis inom BIM och fastighetsteknik för att leverera professionella resultat.

Har du ett liknande projekt?
Vi hjälper gärna dig med ditt nästa byggprojekt. Kontakta oss för en kostnadsfri konsultation och se hur vi kan bidra till ditt projekt med vår expertis inom BIM och fastighetsteknik.