Professionella arkitektritningar med BIM

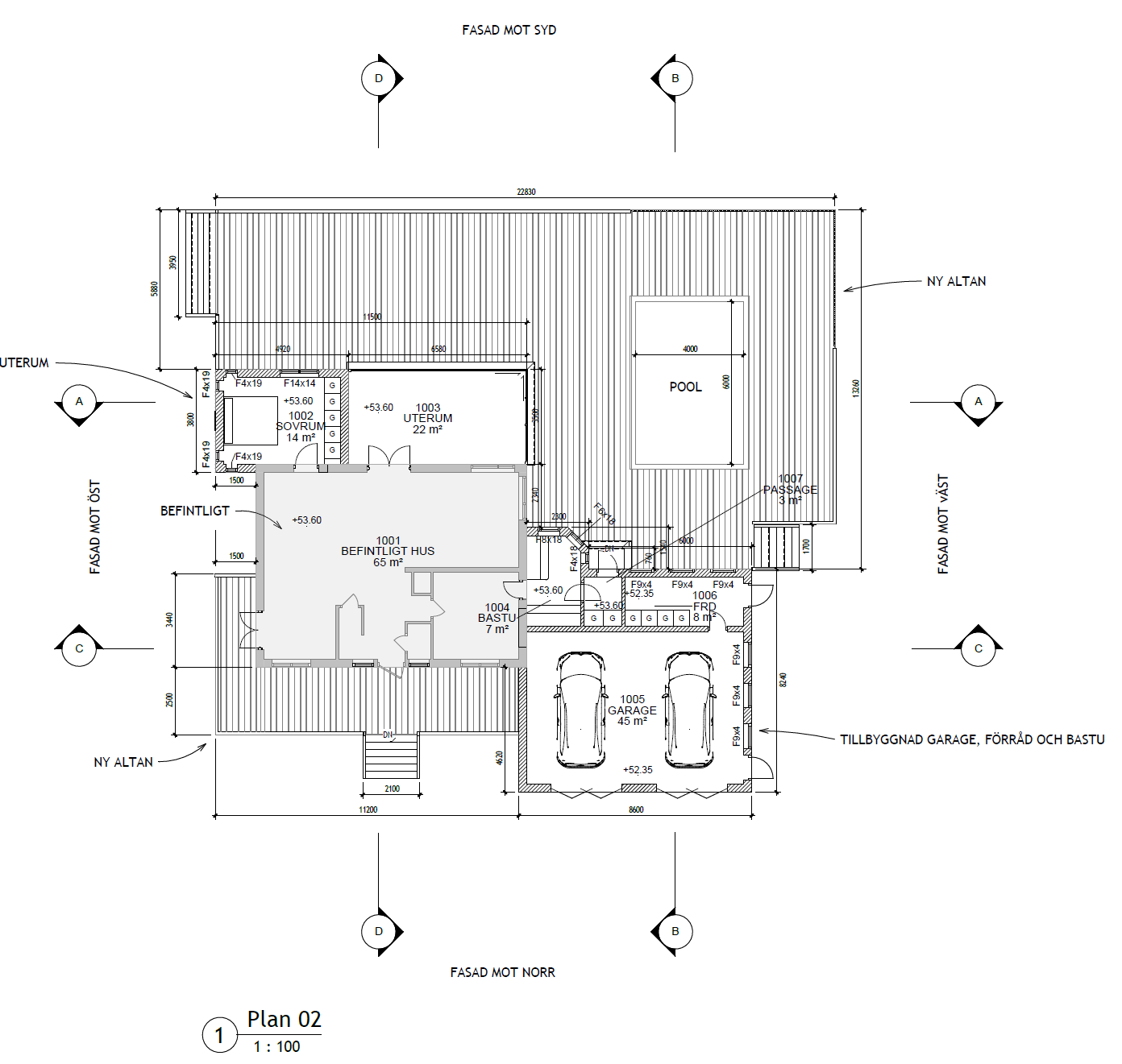
Bimma AB upprättar professionella arkitektritningar för alla typer av byggprojekt. Vi använder Autodesk Revit och levererar relationshandlingar, informationshandlingar och bygglovsritningar.
Vad vi erbjuder
- ✓ Relationshandlingar - Dokumentation av befintliga byggnader
- ✓ Bygglovsritningar - Professionella ritningar för bygglovsansökan
- ✓ BIM-modeller - Moderna 3D-modeller i Revit
- ✓ Multipla format - Leverans i RVT, DWG och PDF

Precision med laserskanning
Vid uppmätning av befintliga byggnader rekommenderar vi 3D-laserskanning för millimeterprecision och färre platsbesök.
Säker lagring
Vi sparar alltid era ritningar och BIM-modeller säkert på vår server. Om du skulle tappa bort filerna kan du alltid få kopior från oss!
För vilka projekt?
- 🏠 Nybyggnation - Villor, radhus och flerbostadshus
- 🏢 Kommersiella projekt - Kontor, butiker och industribyggnader
- 🔨 Om- och tillbyggnationer - Utbyggnad och ombyggnad
- 📋 Relationshandlingar - Dokumentation av befintligt skick
Behöver du arkitektritningar?
Kontakta oss för en kostnadsfri konsultation!
📧 E-post: patrik@bimma.se 📞 Telefon: 070-452 06 62