BIM-konsult och ritningstjänster för alla typer av byggprojekt
Hej! Mitt namn är Patrik och jag är 34 år och BIM-konsult. Med över ett decennium av dedikerad expertis är jag din pålitliga konsult för BIM-samordning och ritningslösningar.

Betrodda av ledande företag
Vi har arbetat med några av Sveriges mest respekterade företag
Professionella tjänster inom BIM/CAD och ritningar för alla byggprojekt
Med över ett decennium av expertis erbjuder vi skräddarsydda lösningar för alla dina byggprojekt och fastighetsrelaterade behov
Arkitektritningar
Bygglovsritningar
Läs mer
BIM-Konsult
Professionell BIM-rådgivning för fastighetsförvaltare
Läs mer
Areamätning
Uppmätning av bostäder och lokaler
Läs mer
Utrymningsplaner
Utrymningsplaner för er verksamhet och behov
Läs mer
Laserskanning
3D-skanning/punktmolnskanning för större fastighetsprojekt
Läs mer
Dokumenthantering
Hjälper till att upprätta och sortera ert ritningsarkiv
Läs mer
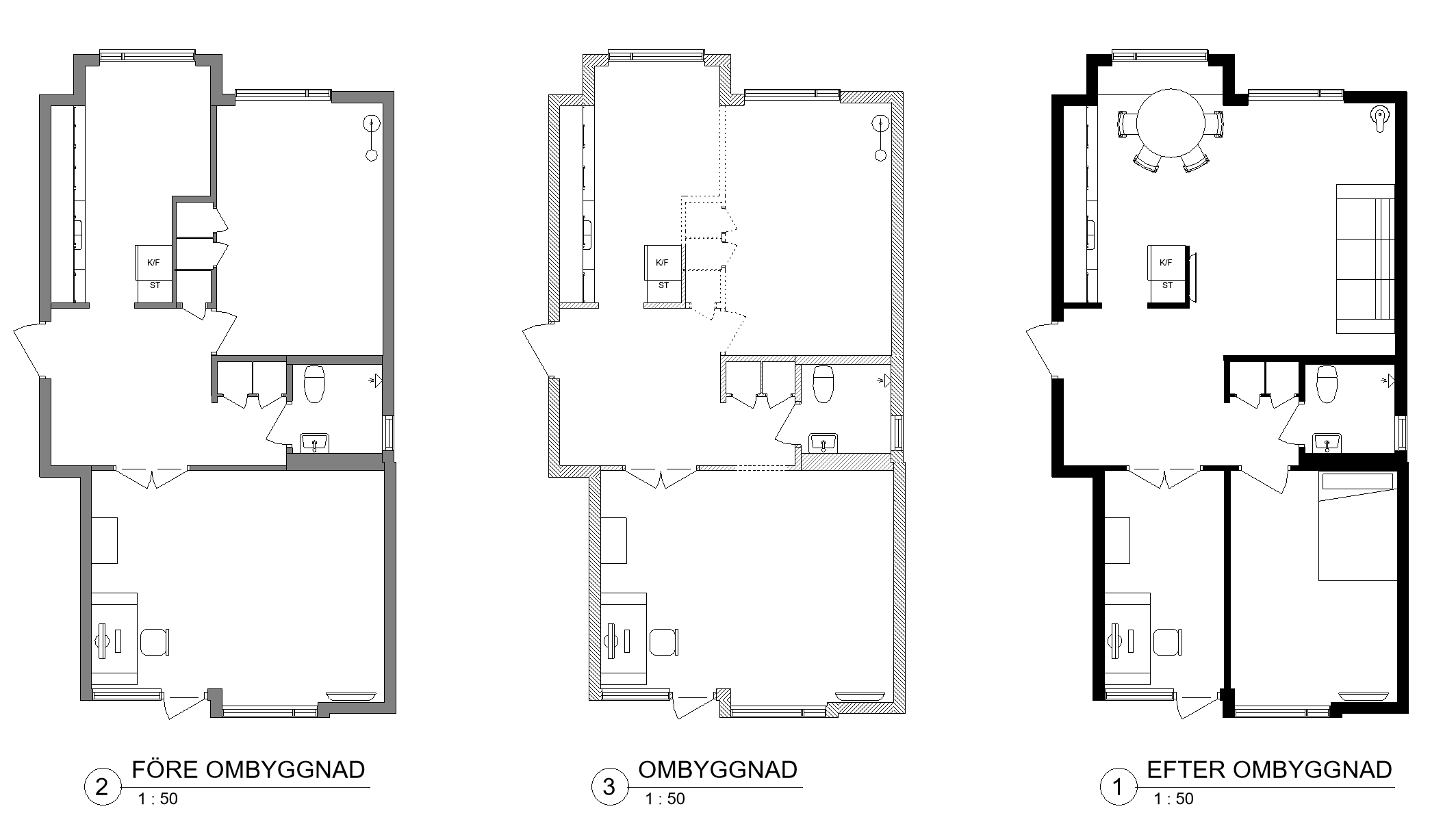
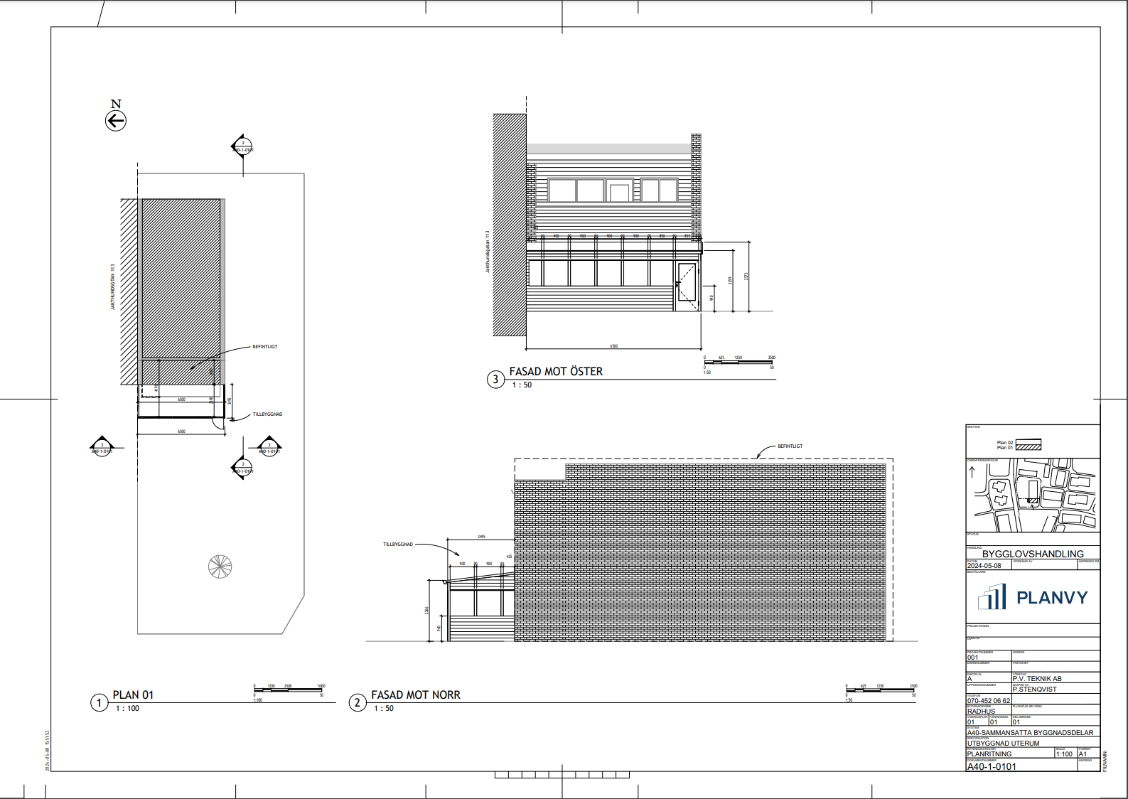
Våra senaste projekt
Se exempel på vårt arbete och hur vi hjälper kunder att förverkliga sina byggprojekt



